Klassningar
Prestanda på dörrens egenskaper har provats av RISE (tidigare SP) och certifierats av RISE Certifiering samt SBSC. Skottsäkerheten är provad av Nammo Vanäsverken AB och explosionsskyddet av Fraunhofer Institut Freiburg. RISE och SBSC utför regelbundna tillverkningskontroller i Dalocs fabriker.
Inbrottsskydd: SS-EN 1627 RC5.
Inbrottsskyddet gäller från gångjärnssidan.
EMI-dämpning: Tillval EMI-C.
Kontakta Daloc för utförande och utrustning till S95 med EMI-dämpning.
Skottsäkerhet: Tillval SS-EN 1522 klass FB6.
Explosionsskydd: Tillval SS-EN 13123-1 klass EPR 2-4.
Dörren är godkänd för utåtgående montage, gångjärnssida = angreppssida.
Korrosivitetsklass: C1-C4 och C5-I enligt SS-EN ISO 12944-2.
S95 kan mot beställning grundbeläggas med zinkepoxy upp till korrosivitetsklass C5-I – A5I.05 enligt EN ISO 12944-5:2007.
CE-märkning: Ytterdörrsutförande (Y95) är CE-märkt enligt produktstandarden för ytterdörrar EN 14351-1.
Följande prestanda redovisas på CE-dekalen, placerad på dörrbladets bakkant:
Inbrottsskydd: SS-EN 1627 RC5.
Inbrottsskyddet gäller från gångjärnssidan.
EMI-dämpning: Tillval EMI-C.
Kontakta Daloc för utförande och utrustning till S95 med EMI-dämpning.
Skottsäkerhet: Tillval SS-EN 1522 klass FB6.
Explosionsskydd: Tillval SS-EN 13123-1 klass EPR 2-4.
Dörren är godkänd för utåtgående montage, gångjärnssida = angreppssida.
Korrosivitetsklass: C1-C4 och C5-I enligt SS-EN ISO 12944-2.
S95 kan mot beställning grundbeläggas med zinkepoxy upp till korrosivitetsklass C5-I – A5I.05 enligt EN ISO 12944-5:2007.
CE-märkning: Ytterdörrsutförande (Y95) är CE-märkt enligt produktstandarden för ytterdörrar EN 14351-1.
Följande prestanda redovisas på CE-dekalen, placerad på dörrbladets bakkant:
| Motstånd mot vindlast: | klass 5A |
| Vattentäthet: | 1B |
| Avgivande av farliga ämnen: | godkänd |
| Ljudreduktion: | npd |
| U-värde enkeldörr: | 4,0 |
| U-värde pardörr: | npd |
| Lufttäthet: | klass 3 |
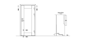
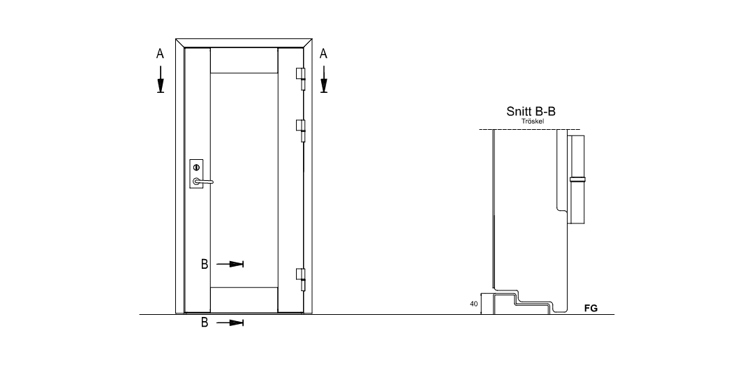
Dörrblad
Konstruktion: Dörrbladet är dubbelfalsat och består av stålplåt med kraftiga förstärkningar. Dörrbladets tjocklek är 141 mm.
Material: Stålplåt, fylld med betong.
Ytbehandling: Dörrarna levereras grundmålade men kan mot beställning grundbeläggas med zinkepoxy upp till korrosivitetsklass C5-I – A5I.05 enligt EN ISO 12944-5:2007.
Material: Stålplåt, fylld med betong.
Ytbehandling: Dörrarna levereras grundmålade men kan mot beställning grundbeläggas med zinkepoxy upp till korrosivitetsklass C5-I – A5I.05 enligt EN ISO 12944-5:2007.
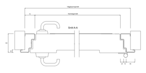
Karm
Konstruktion: Karmen tillverkas av 3?mm kallvalsad stålplåt med omfattande förstärkningar. Fem fasta tappar griper in i karmen i stängt läge. Karmen levereras med skyddande foder på gångjärnssidan.
Tröskel
Dörren levereras med anslagströskel av stål.
Standardbeslag
Lås: Klarar RC 5 med endast 1 lås. Levereras med mekaniska låshus som exemplevis Assa 510 BL, eller Step H50. Dörren kan även förberedas för motorlås, till exempel Step 500-serien, Safetron 6600 eller Assa 850. För skydd av mekanisk cylinder används ett egenutvecklat kraftigt förstärkt låsskydd. För andra godkända alternativ, kontakta Daloc.
Övrigt: Kullagrade gångjärn och fem fasta tappar i bakkant.
Övrigt: Kullagrade gångjärn och fem fasta tappar i bakkant.
Tillval
Kan levereras förberedd för magnetkontakt, utrymmningsbeslag (ej panikutrymmning eller ställverksregel), dörrstängare, mm
För utåtgående dörr som helt saknar regnskydd, rekommenderas vattenavvisare i ovankant.
Vi förbehåller oss rätt till konstruktionsändringar.
För utåtgående dörr som helt saknar regnskydd, rekommenderas vattenavvisare i ovankant.
Vi förbehåller oss rätt till konstruktionsändringar.






